35 SCOTLAND ROAD
TrueNorthRealty.net
22 Woburn Street | Suite 24 | Reading MA 01867
THIRD FLOOR
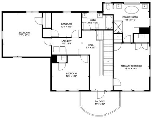
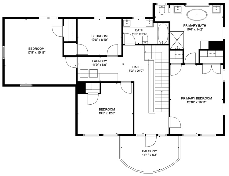
SECOND FLOOR
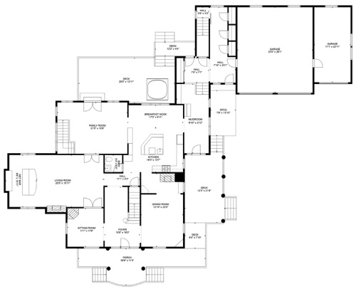
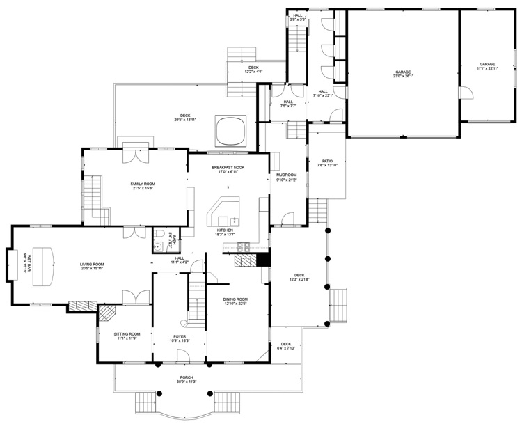
FIRST FLOOR
OVER GARAGE
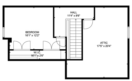
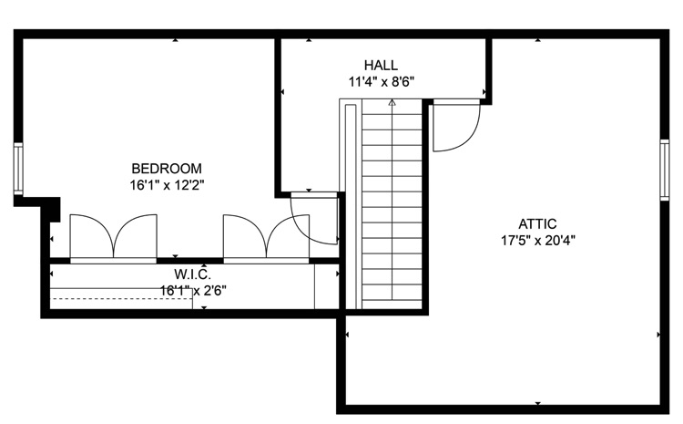
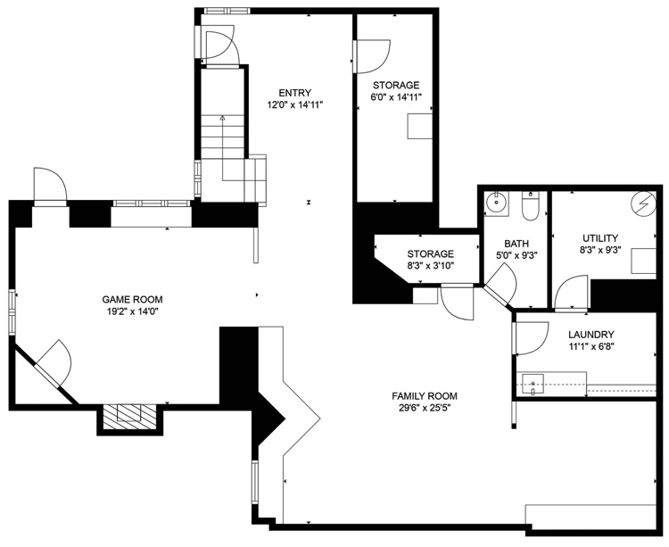
LOWER LEVEL